© 2026 Regimo Basel

Gewerberaum im Dorfkern von Pratteln

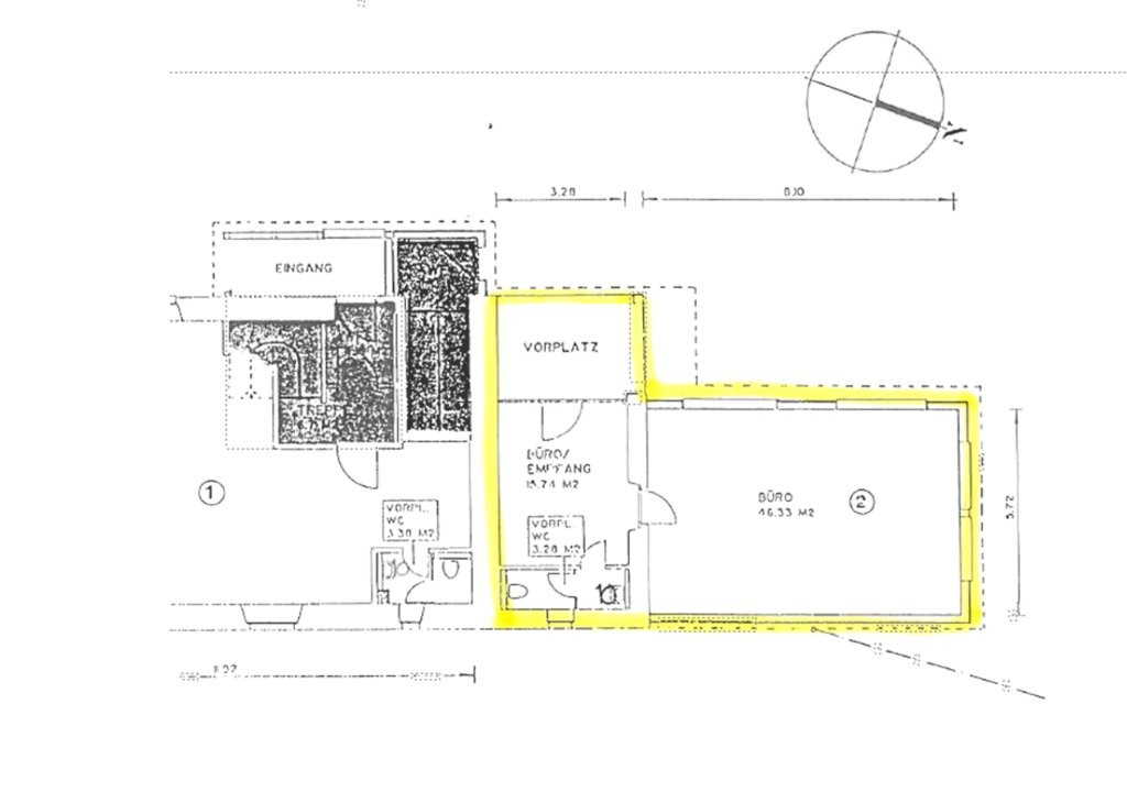
An attraktiver Zentrumslage vermieten wir einen Raum der vielfältige Nutzung ermöglicht. Das Objekt befindet sich in einem sorgfältig renovierten Altbau.

Als Mieter können wir uns folgende Branchen vorstellen: Beratung / Handel / Vertrieb / Atelier / Praxis oder Kunsthandwerk

Gut fürs Geschäft

- CHF 208.-- / m2 p.a. netto
- flexibel organisierbar
- sehr ruhig
- Autobahnanschluss in der Nähe
- Böden in hochwertigem Parkett

Ihre Vorteile mit Regimo Business

- individuelle Mietpreis- und Vertragsmodelle
- Beratung und Unterstützung bei der Umbau- und Einrichtungsplanung durch ausgewiesene Spezialisten
- Persönliche Betreuung und hohe Flexibilität im Hinblick auf Mieterwünsche

Interessiert? Dann lohnt sich eine Besichtigung.
150 m
Öffentlicher Verkehr
400 m
Einkaufsmöglichkeit
200 m
Schule / Kindergarten
1.5 km
Stadtzentrum
haustiere Haustiere erlaubt
Garage Garage / Parkplatz

Weitere Objekte von Regimo Basel